Via San Gottardo, 81 – 6742 Pollegio

Casa bifamiliare

Luogo
Indirizzo
CAP

CHF 1'050'000.-

Descrizione

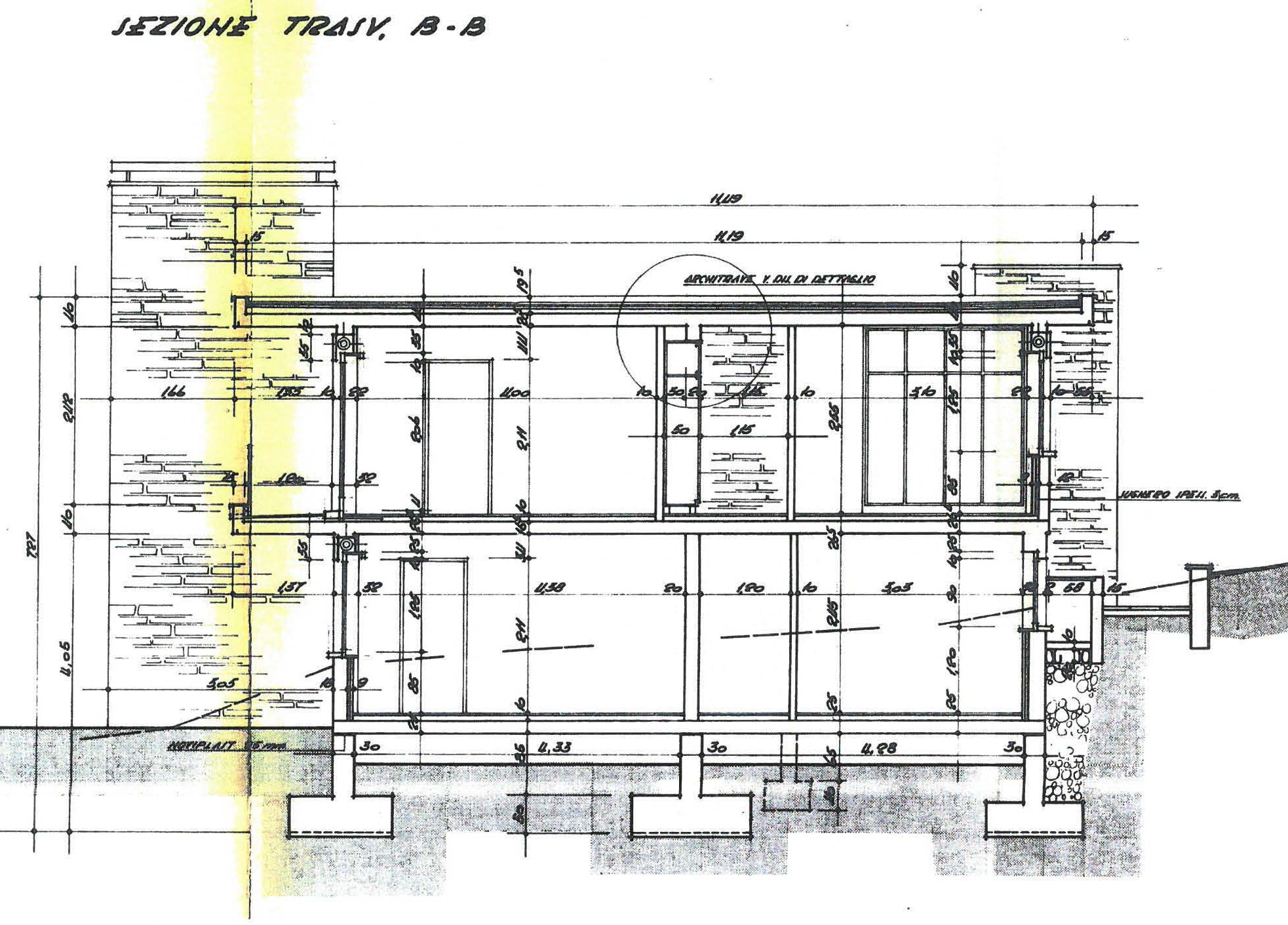
Spaziosa casa padronale risalente alla fine degli anni ’60, tipica della zona, caratterizzata da linee architettoniche di pregio e da una costruzione solida in calcestruzzo armato, pietra naturale e mattoni di cotto.

Superfici e dimensioni:
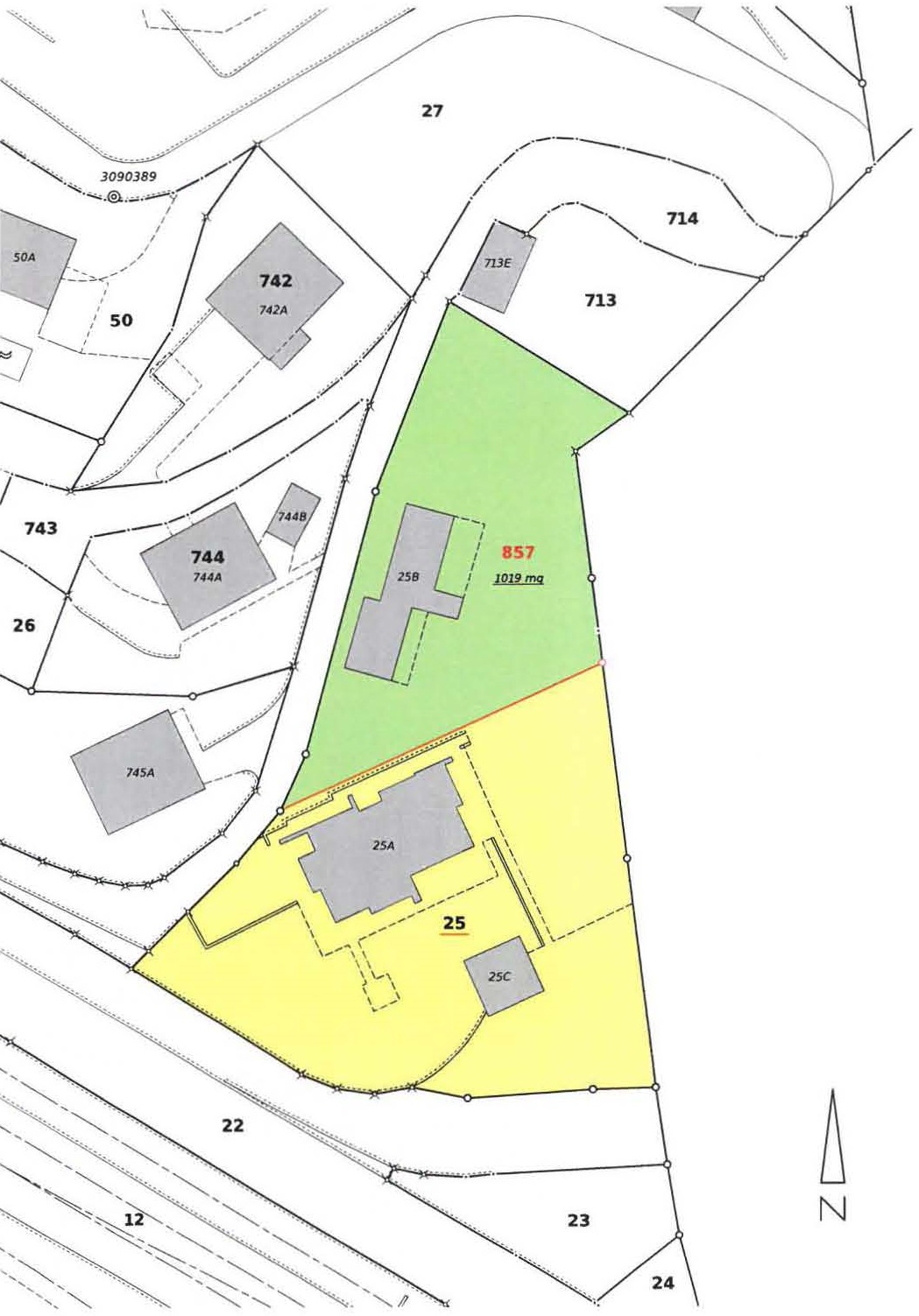
  • Fondo: 1'635 m²
  • Volume abitazione: 1'300 m³
  • Zona residenziale estensiva – indice di sfruttamento 0.6
Distribuzione degli spazi:
  • Piano terreno: entrata, atrio, scala interna, cucina abitabile, soggiorno, 4 camere, ampio salone, doppi servizi. Ristrutturato a nuovo.
  • Piano seminterrato: appartamento indipendente, ex studio medico con diversi locali a disposizione, doppi servizi.
Gli ambienti sono luminosi e ben distribuiti, con esposizione ottimale. Attualmente il piano terreno è affittato e si potrebbe ristrutturare anche il piano seminterrato per ottenere un altro grande appartamento.


All’esterno la proprietà dispone di un ampio giardino, ideale per momenti di relax e attività all’aperto.


Caratteristiche tecniche:
  • Costruzione massiccia con materiali di qualità
  • Tetto piano in calcestruzzo
  • Impianto di riscaldamento tradizionale a olio, distribuzione mediante radiatori a parete
Posteggi:
  • 1 posto auto coperto
  • Piazzale esterno con diversi posti auto disponibili
Ulteriori:
  • Facilità nel raggiungere la stazione e l’autostrada.
Questa proprietà rappresenta una soluzione ideale per chi cerca una grande casa familiare o un’abitazione con spazi indipendenti per due nuclei abitativi.

Dettagli

Superficie abitabile
Superficie mappale
Superficie edificata
Terreno non edificato

Richiedi info

Contatta il nostro agente

Nome
Email
Telefono
Numero referenza immobile: 6746-MF-V