Via San Gottardo, 81 – 6742 Pollegio

Villetta monofamiliare

Luogo
Indirizzo
CAP

CHF 990'000.- (trattabili)

Descrizione

Vendesi casa monofamiliare costruita nel 2018, Standard Minergie.

L’abitazione si sviluppa su due piani fuori terra e un piano completamente interrato, con la zona giorno al Piano terreno e la zona notte al 1° piano:

ACCESSO:
L'accesso alla casa avviene dalla strada comunale in Via Ponte Vecchio.
A disposizione ci sono due posti auto coperti e due scoperti.

INGRESSO:
Si accede al piano terreno tramite un disimpegno d'entrata con annesso wc di servizio

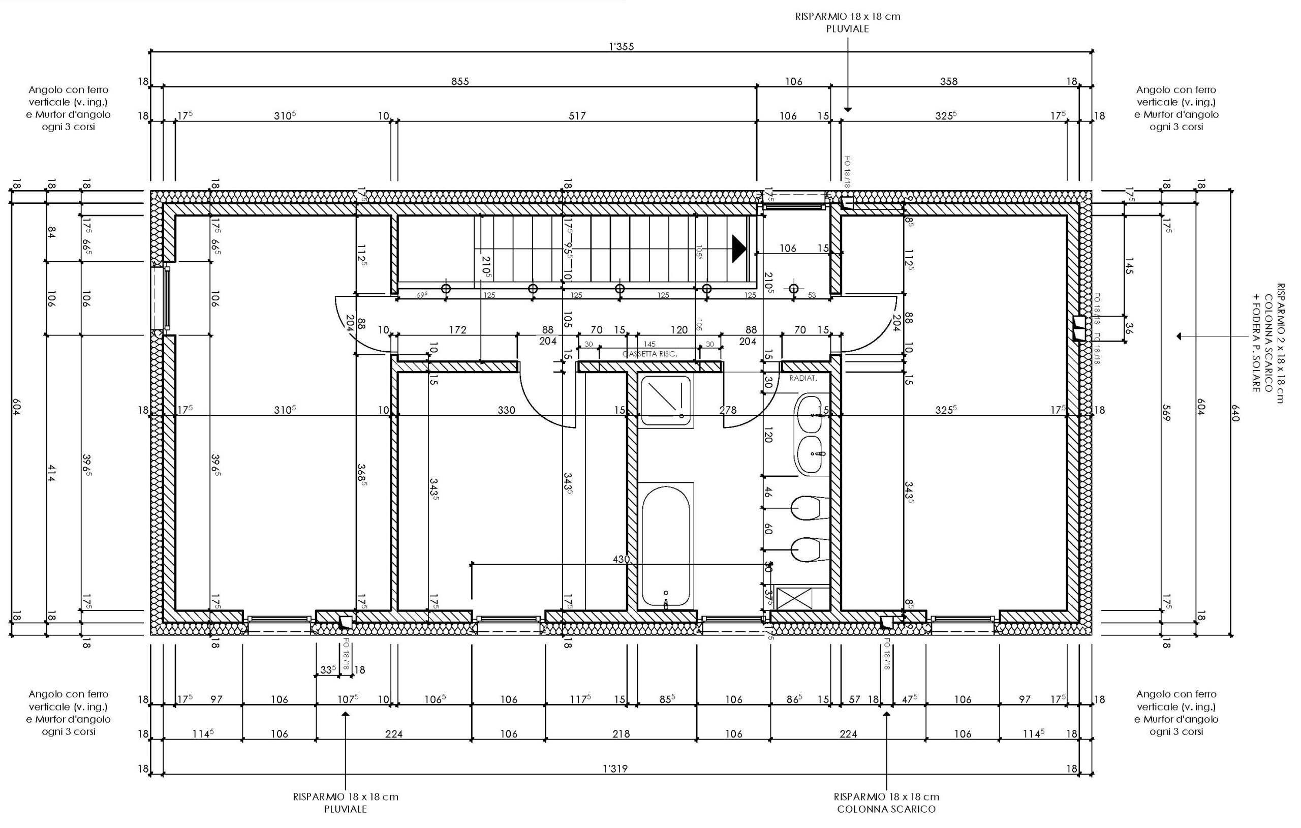
PIANOTERRA:
Ampio spazio aperto costituito da cucina, pranzo e soggiorno, nonché la scala per l'accesso ai piani superiori e una scala per l’accesso alla cantina.

PIANO PRIMO:
Costituito da disimpegno, tre camere da letto con un servizio grande, composto da doccia, vasca da bagno, bidet e lavandino.

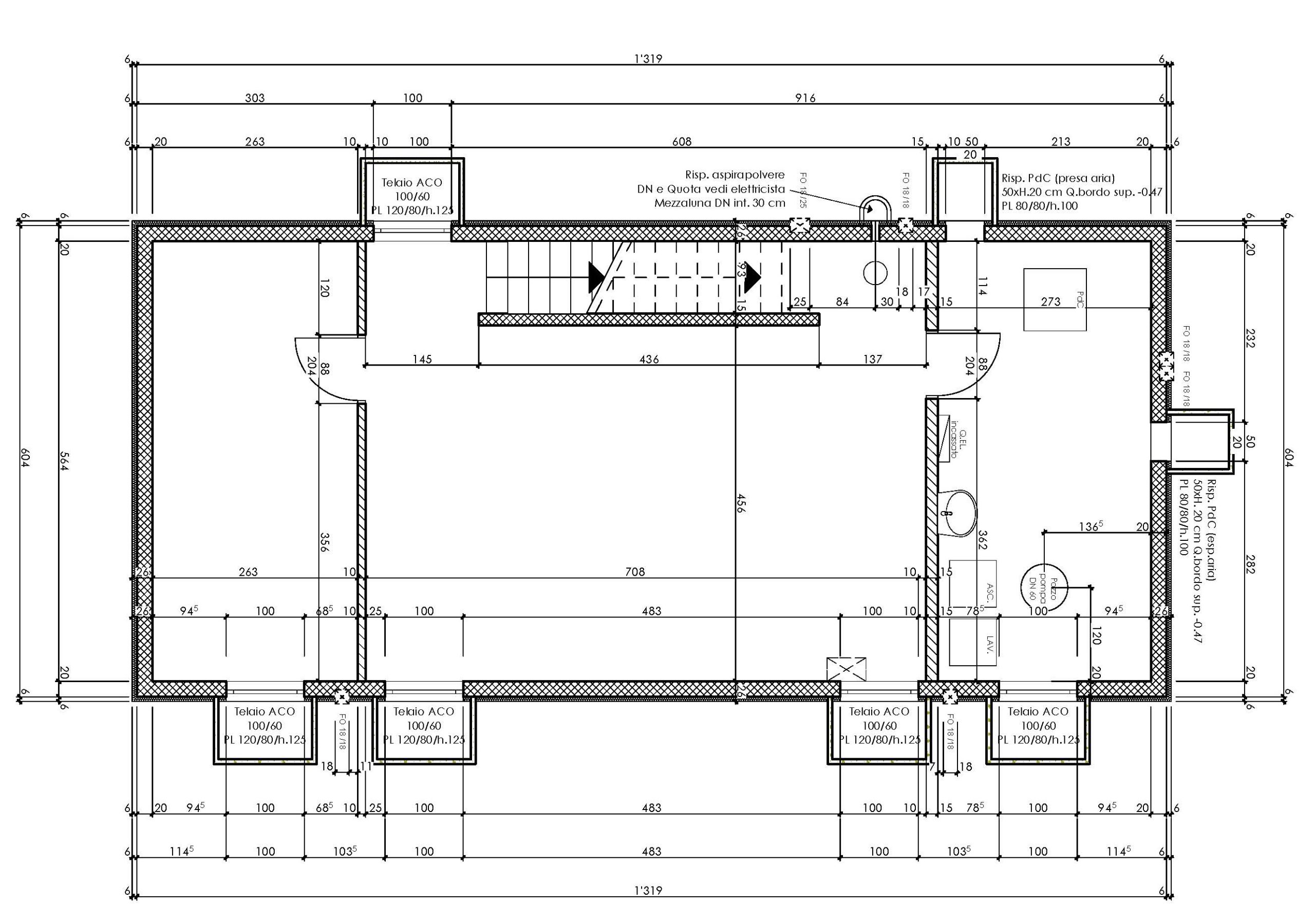
PIANO CANTINA:
Costituito da locale tecnico - lavanderia e depositi.

COPERTURA:
L’abitazione ha un tetto piano non praticabile, sulla quale sono posati dei pannelli fotovoltaici.

ESTERNO:
Dal piano terreno sarà possibile l'accesso diretto al terreno antistante tramite ampie vetrate situate sulle facciate est e nord.

IMPIANTO DI RISCALDAMENTO:
Produzione di calore tramite termopompa aria/acqua tipo Split con posa dell'unità esterna sulla soletta di copertura. 
Distribuzione di calore con serpentine a pavimento per i piani abitabili al PT e 1° piano. 
Regolazione della temperatura con termostato nei vari locali.

IMPIANTO DI VENTILAZIONE
L’abitazione è dotata di impianto di ventilazione controllata con recuperatore di calore per una migliore qualità dell'aria interna e risparmio energetico.

IMPIANTO ASPIRAPOLVERE CENTRALIZZATA: 
La casa è dotata di un impianto d’aspirazione centralizzato, la cui base si trova in cantina.
Superficie totale:
Parcella:        400,00 mq

Piano terra       83,60 mq
Primo piano:      86,70 mq
Piano cantina:    86,70 mq
Totale:          257,00 mq

Dettagli

Superficie abitabile
Superficie mappale
Superficie edificata
Terreno non edificato

Richiedi info

Contatta il nostro agente

Nome
Email
Telefono
Numero referenza immobile: 6742-PonteVecchio10